暂无信息
芜湖港务有限责任公司 油缸采购询价公告
芜湖港务有限责任公司
油缸采购询价公告
采购人:芜湖港务有限责任公司
地址:安徽省芜湖市鸠江区朱家桥外码头
采购方式:询价
一、采购需求
物料名称 | 规格 | 单位 | 数量 |
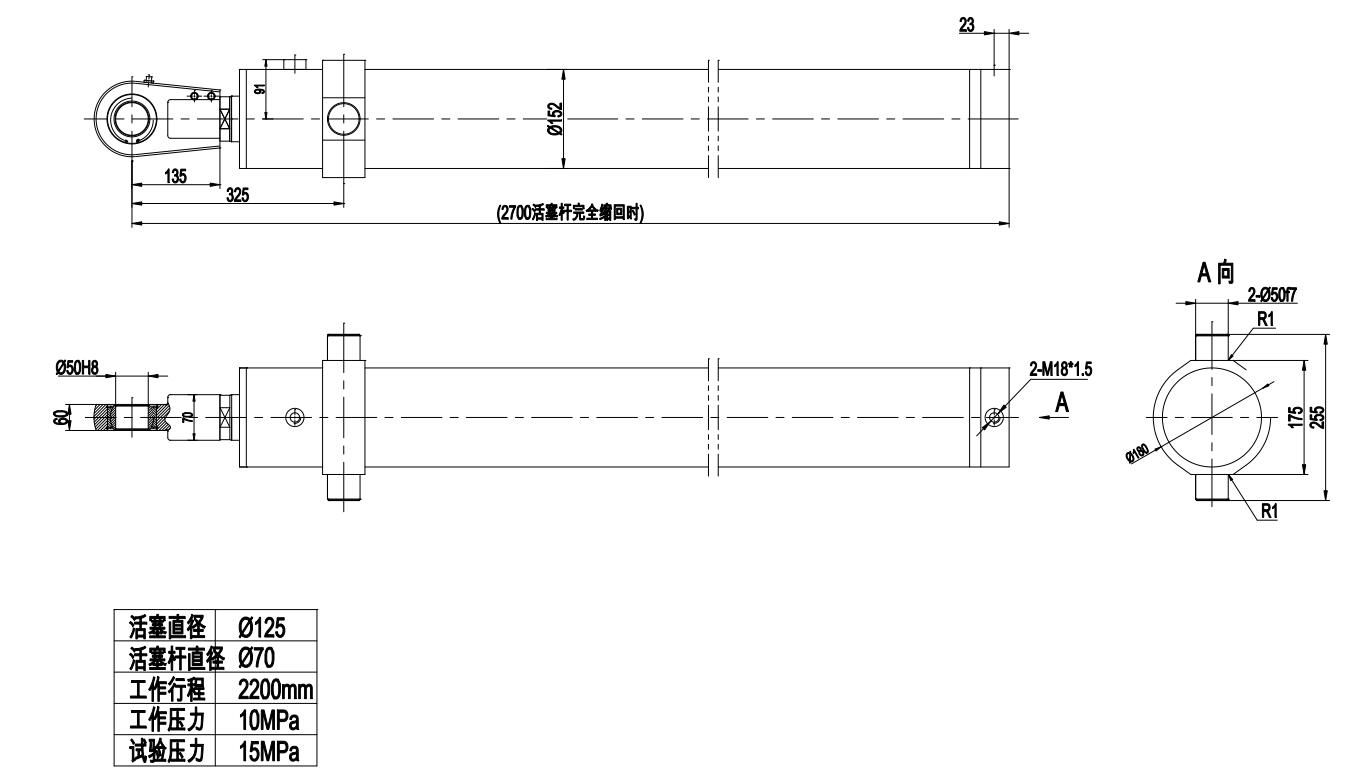
油缸 | 见图纸 | 根 | 2 |

二、报价要求
对供应商要求:具有有效营业执照、具备合同履行能力。
报价包括采购、运输、人工、税费等所有费用,报价有效期60天,提供增值税专用发票。
三、报价须知
1、报价截止时间:2020年4月20日14时00分
2、报价方式:
(1)报价表(加盖公章)、营业执照扫描件或复印件,通过电子邮件(95641917@qq.com)、快递、传真等方式至工程技术部;
(2)供应商需完整填写报价信息,并按采购要求提供相应资料,须在报价截止时间前按要求提交报价,逾期不予受理。
3、报价须响应条件
序号 | 条件名称 | 条件内容 |
1 | 交货时间 | 接通知后60天内 |
2 | 评审方式 | 采取总价评审,请谨慎报价。 |
3 | 违约责任 | 成交供应商延迟交货或提供商品服务不满足公告所列要求的视为违约,需承担违约责任。 |
4 | 付款方式 | 验收合格且发票送达后60天内付款 |
5 | 物流方式 | 如发快递请发顺丰;物流请发德邦物流、顺丰大件或自备车辆送货至芜湖港务公司。 |
四、注意事项
1、供应商如有疑问可以联系工程技术部答疑;
2、供应商应合理安排报价时间,超期未报价,不予受理;
3、我公司不提供装卸人员,请自行装卸;
五、联系方式
联系人:陈先生(工程技术部)
联系电话:0553-5893102 邮箱:95641917@qq.com
报价表
序号 | 产品名称 | 规格型号 | 单位 | 数量 | 单价(元) | 金额(元) |
XXXX | XXXX | XXXX | XXXX | XXXXX | XXXXX | |
税率: 合计金额: 大写金额: | ||||||
供应商(加盖公章):
报价日期: 年 月 日
注:1、报价包括采购、运输、人工、税费等所有费用。报价含增值税税额;
2、表格不够可以自行加页;
3、可用其他报价单样式替代但类容需要符合;
暂无信息
暂无信息
暂无信息
暂无信息
0551-63735952
皖公网安备 34010402701600号